Listing provided courtesy of Amy Johnson of Jann C Pitcher Real Estate. Last updated 2023-08-29 11:00:09.000000. Listing information © 2026 .
Asking Price: $545,000
83 Hawk, Pagosa Springs CO 81147
Community:
This property was built in 1995 and is priced at $545,000. Please see the additional details below.
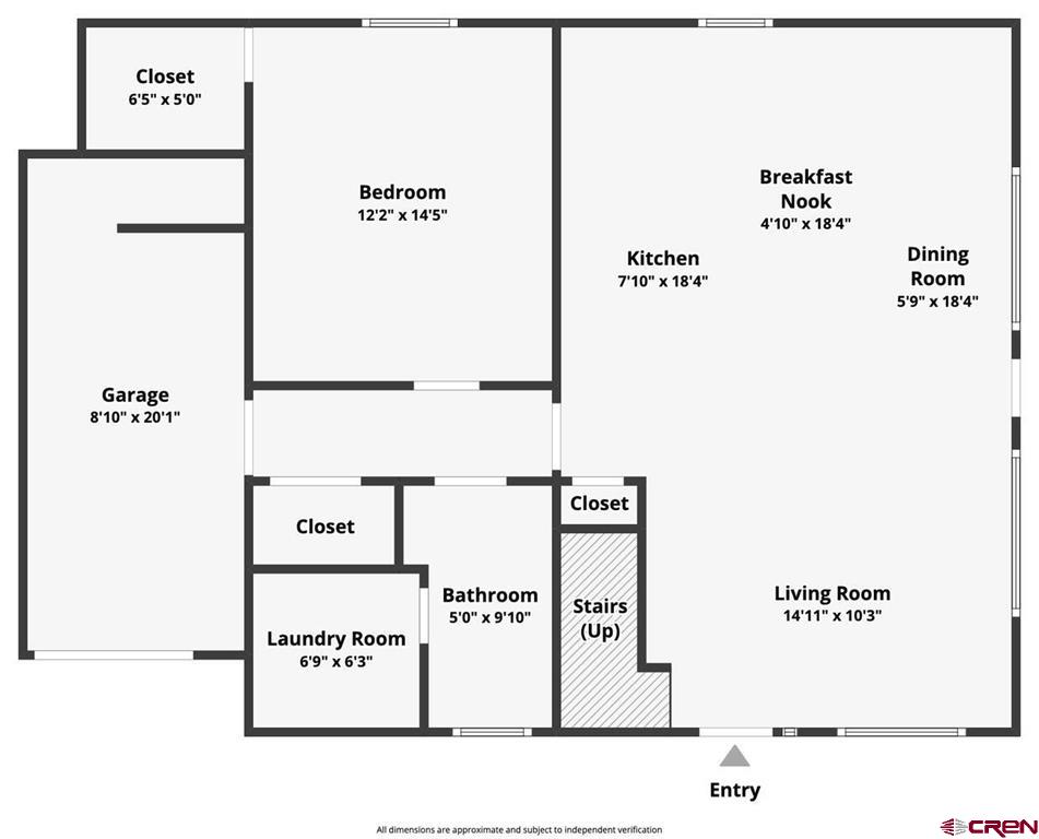
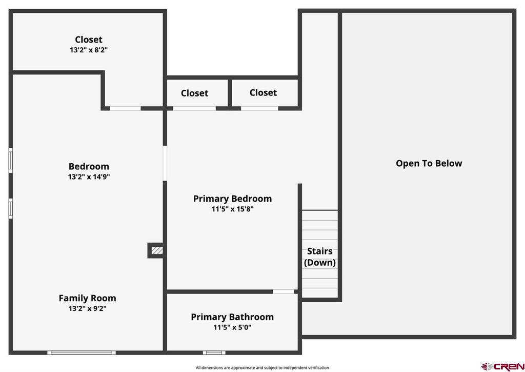
You can't help but notice the gorgeous mountain views and an abundance of natural light when you step into this home! Open and inviting living/dining/kitchen areas with tall ceilings and views from every window create a comfortable area for entertaining or just hanging out. There is a spacious bedroom, with a walk-in closet and a full bath, on the main level. The upstairs loft has plenty of closets and would work well for an office or additional bedroom. A full bathroom and the huge 2nd bedroom/bonus room/living space with a walk-in closet complete the second story. The neighbors on each side are situated on double lots and this home backs to a large greenbelt, providing a roomy outdoor feel. Take in the views from the wrap-around deck or covered porch. There is a shed for additional storage and a one-car attached garage. Lake Hatcher is just a short walk away or be in the national forest in a few minutes to enjoy the miles and miles of trails. This gem of a home is located on a peaceful street with great neighbors. Take in the fresh air, dark night skies, fish in the lake, or be in town within 15 minutes for the world famous hot springs, concerts, festivals, shopping and dining. Don't miss out on this one!






































